QUEENS SQUARE
Extensive rearrangement and extension of a tight central village site
Not listed
In progress, expected to complete in 2027.
Extensive rearrangement and extension of a tight central village site
Not listed
In progress, expected to complete in 2027.
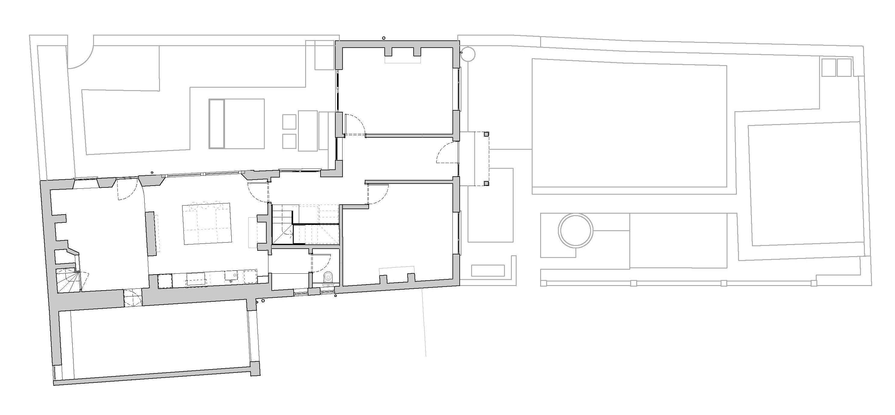
Rearrangement of internal living accommodation to provide greater amenity for family life with two small children and extension to gain an extra bedroom, bathroom and storage space. In a sensitive location the planning application was successful in 2024. The designs centred around the rear garden creating two sides of a courtyard house with the rooms now facing into the courtyard creating a little private oasis at the centre of a busy village.
The project has been phased to keep it in line with the family’s budget and so flexibility has been built into the design to allow for changes as the renovations progress. The design celebrates the historic parts of the house and brings back many features which have been lost. The modern areas of the house allow greater flexibility for change.