ALBANY ROAD
Renovation of a flat within historic school building.
Not Listed.
Completed.
Renovation of a flat within historic school building.
Not Listed.
Completed.
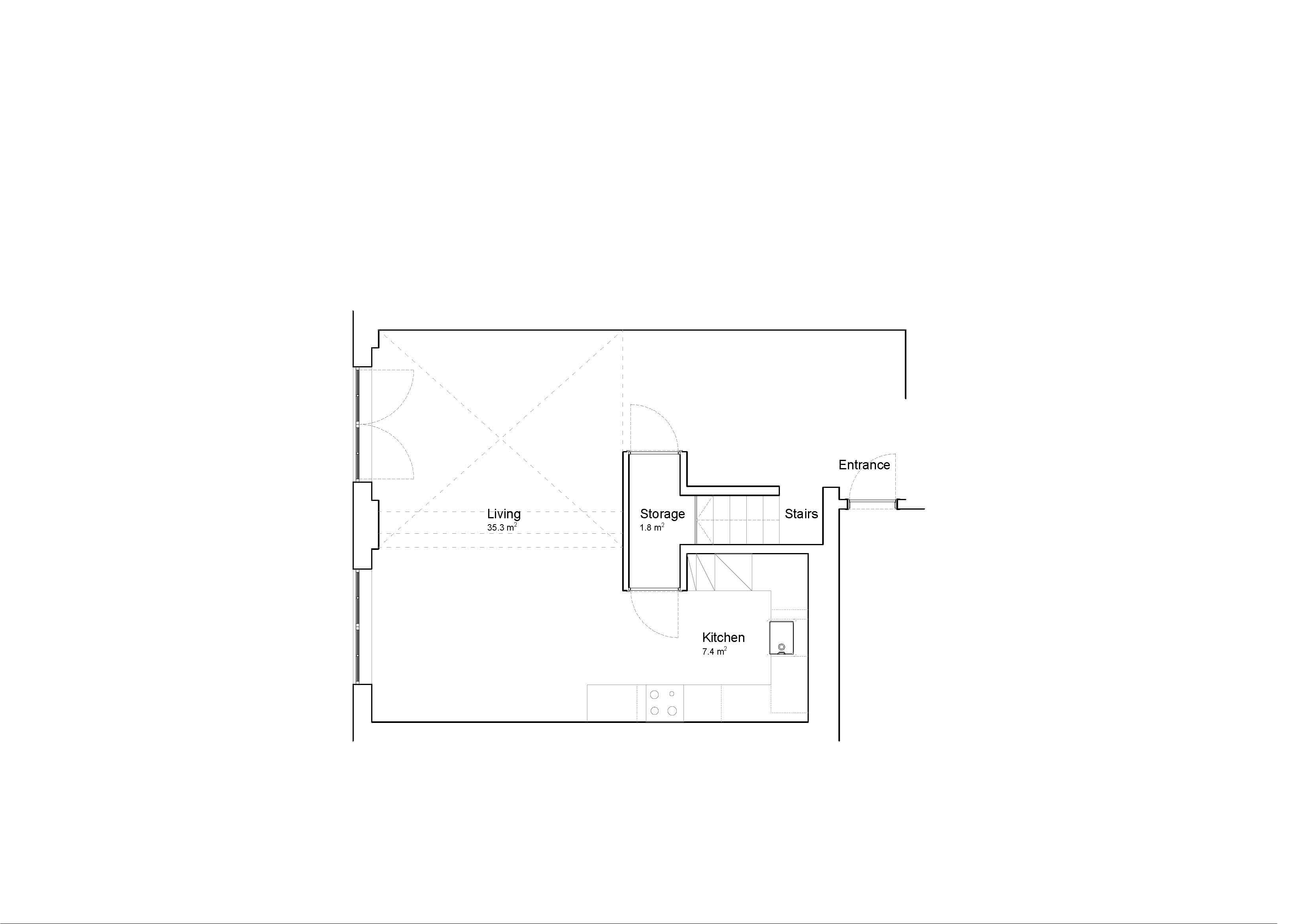
The typical Queen Anne style, London Board School, built in 1877 had been divided into flats and apartments in the early 2000s. This ground floor flat was in need of a refresh and some rethinking in order to make best use of the space. Many options were considered, the original design featured a new minimal steel staircase to replace the existing timber and a playful kitchen design. Minimising disruption by keeping the kitchen and other services in place but opening it out to the rest of the flat and introducing a pop of colour to enliven the living experience.
Budget constraints kept the original stair in place, however the changes to the kitchen design changed how the client thought about and used the spaces. The high quality kitchen adds the right touch of luxury to the apartment.