WEYMOUTH ROAD
Sensitive extension and rearrangement of a 19th century cottage.
Within the Evercreech Conservation Area.
In progress, expected to complete in the summer of 2025.
Sensitive extension and rearrangement of a 19th century cottage.
Within the Evercreech Conservation Area.
In progress, expected to complete in the summer of 2025.
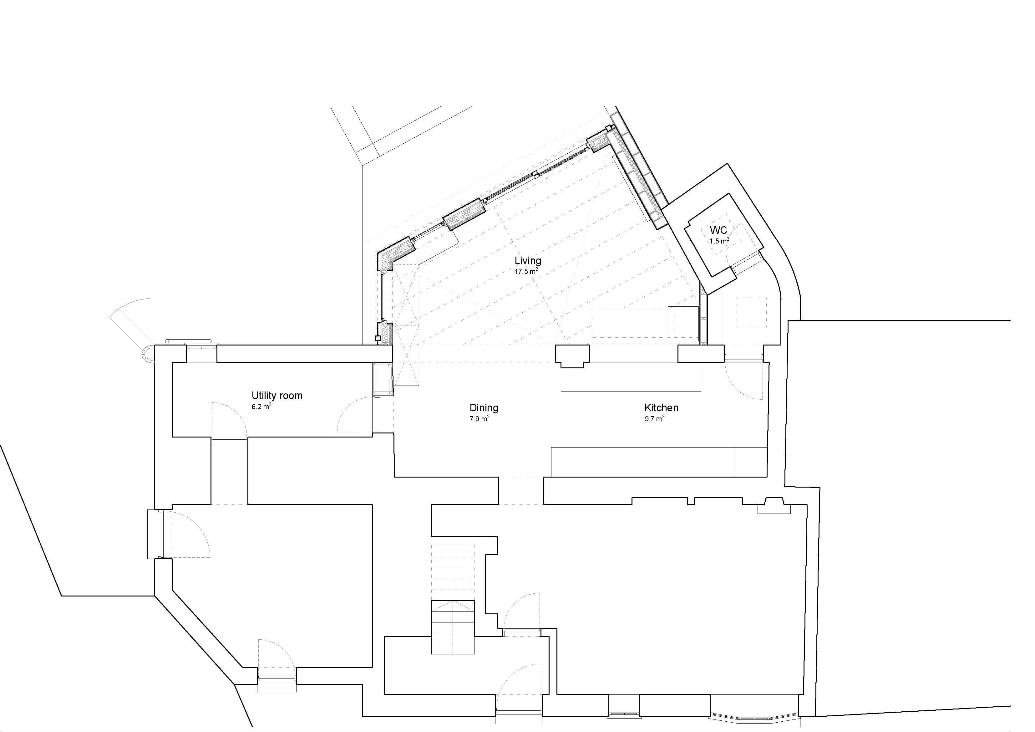
The clients needed to replace a leaking garden room structure and address some damp issues to the rear of the house while also wanting an expanded dining room and play area for their small children. leaving their living room toy-free. The proposals replaced the garden room with an expanded dining area while changing the orientation to integrate into their mature garden and create visual links.
The extension brought much needed light and space to the ground floor of this 19th century rubble stone cottage. Natural materials were proposed to the garden elevations so they weather well and provide a soft backdrop to outside dining area.